三年中文在线看免费观看电视剧大全-三年高清在线观看-三年在线观看免费高清-三年中文在线观看大全电视剧

NEWS 家裝攻略

鄭州裝修設計公司 >> 家裝攻略 > 鄭州133平新中式裝修報價:32萬精裝三居室中式案

鄭州133平新中式裝修報價:32萬精裝三居室中式案

2018-10-23 1238 預約設計
  雖然現在大家愛追求日韓現代風,但仍有不少朋友很喜歡中式風格那種有深厚的文化底蘊的感覺,特是一起居住的父母一般也比較接受中式復古的沉穩,當然為了生活的方便,就可以裝修比較有活力清爽大氣的新中式,那么一般133平新中式裝修多少錢?32萬精裝三居室中式案例,一定能給你一些啟發。
 
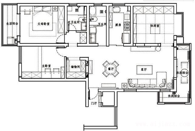
133平新中式裝修多少錢?
 
  空間類型:三室兩廳
 
  房屋面積:133㎡
 
  裝修風格:新中式
 
  工程造價:32萬
 
  裝修平面圖:
133平新中式裝修多少錢?
 
  新中式客廳裝修:
 
  客廳裝修營造出花好人圓邀月對影的意境,在一家人相處的點滴平凡的日子里,細細品味生活的美好。
 
133平新中式裝修多少錢?
 
  木月亮門、雕花窗、滿福、定制的花鳥壁畫,搭配和諧濃淡相宜,處處都有景致。
 
133平新中式裝修多少錢?
 
  圓拱形月亮門寓意著情濃人團圓的意境,充滿家的柔情和安心。
 
  新中式餐廳裝修:
 
  餐廳一面花鳥墻,一面白色墻面和厚重沉穩的實木線條搭配,暖暖的燈光下,簡潔的中式家具也顯得分外溫馨。
 
133平新中式裝修多少錢?
 
  新中式廚房裝修:
 
  寬敞的廚房,黑白色的搭配,經典耐看。
 
133平新中式裝修多少錢?
 
  新中式休閑室裝修:
 
  休閑室,閑時約三兩好友,或幾杯清茶,或打牌嘮嗑...
 
133平新中式裝修多少錢?
 
  新中式衛浴裝修:
 
  衛浴裝修干濕分區,采光也好。
133平新中式裝修多少錢?
 
  133平新中式裝修多少錢?新中式裝修對造型與軟裝的要求仍舊很高,預算一般都不能太低,32萬精裝三居室中式案例大家還滿意嗎?更多裝修精美案例,盡在鄭州裝修公司

轉載請注明原文地址:http://m.gzbqip.com/baojia/210.html

1000+
業主共同見證


免費驗房/量房設計/施工報價
專業設計師/自營施工隊
不轉包/不分包/曾諾0增項
千舟裝飾以品質贏得口碑

booking

現在預約咨詢,立即享受免費量房設計&施工報價

10秒快速在線申請

  • 請輸入空間類型
  • 請輸入建筑面積
  • 請輸入您的稱呼
  • 請輸入您的電話